Royale Tern

  • $2,295,000List Price
  • ActiveStatus
  • 21Number of Photos
  • 26.424251Latitude
  • 2959 W Gulf DriveAddress
  • W Gulf DriveStreet
  • 204Unit Number
  • SanibelTown
  • FLState
  • 33957Zip
  • Lee CountyCounty
  • CondoProperty Type
  • 2250603MLS Number
  • 3Bedrooms
  • 1Half Baths
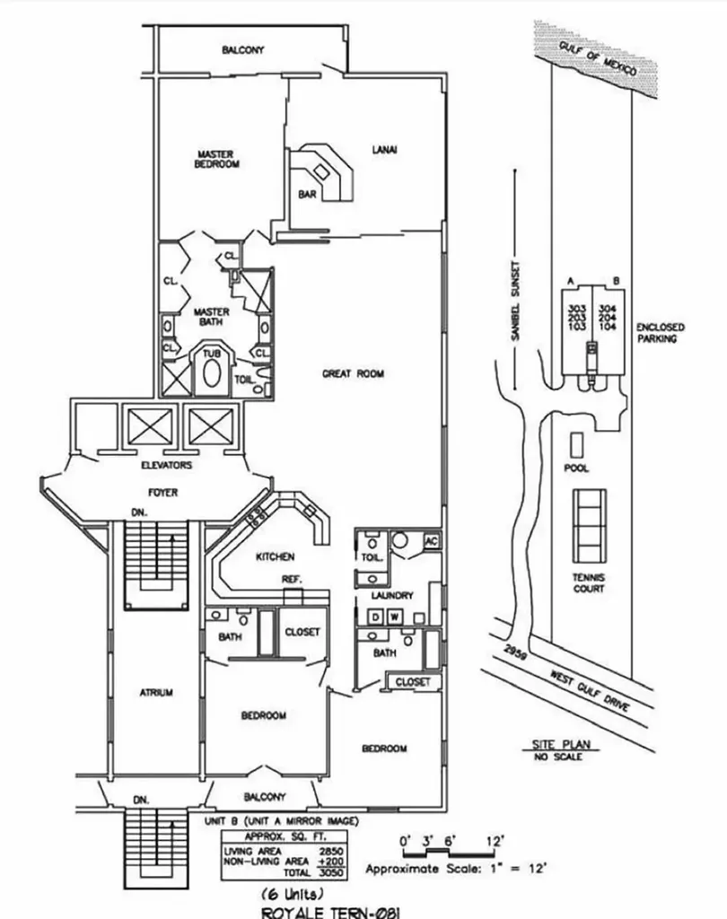
  • 2,850Square Feet
  • 1991Year Built

Listing Tools

INNOVATIVE AND CREATIVE DESIGN WORK NOW IN PROGRESS! Price Increase Coming. Rare opportunity to reimagine this Southwestern exposure in one of Sanibel's finest and most distinguished Beach Front Condominiums. This home has been enjoyed by the same Family since 1993. Royale Tern #204 is a premier home with panoramic gulf front and sunset views from the large glassed corner lanai with wet-bar plumbing. 2850 sq.ft. includes 3BR/3.5BA, separate laundry room and open kitchen. Each BR has its own ensuite bath and balcony. This home suffered damage from Hurricane Ian and has been restored; providing a fresh opportunity for a new Owner to create with personal taste. Royale Tern is a private, six-unit condominium not allowing rentals or pets. The complex includes private pool and spa, courts, and grill.

Location

 "Based on information submitted to Sanibel & Captiva Islands Association of REALTORS as of February 8, 2026 5:13 AM EST . All data is deemed reliable but is not guaranteed accurate by the MLS. All information should be independently reviewed and verified for accuracy. IDX information is provided exclusively for consumers’ personal, noncommercial use and may not be used for any purpose other than to identify prospective properties consumers may be interested in purchasing."

Hi there! How can we help you?

Contact us using the form below or give us a call.

Send Us A Message:

By submitting this form I agree to receive marketing and customer service calls and text messages from Michael Saunders & Company. To opt out, you can reply 'stop' at any time or click the unsubscribe link in the emails. Consent is not a condition of purchase. Msg/data rates may apply. Msg frequency varies. Privacy Policy.

Do not fill in this field:

This site is protected by reCAPTCHA and the Google Privacy Policy and Terms of Service apply.

Hi there! How can we help you?

Contact us using the form below or give us a call.

Send Us A Message:

Do not fill in this field:

This site is protected by reCAPTCHA and the Google Privacy Policy and Terms of Service apply.

Hi there! How can we help you?

Contact us using the form below or give us a call.

Send Us A Message:

Do not fill in this field:

This site is protected by reCAPTCHA and the Google Privacy Policy and Terms of Service apply.

Do not fill in this field:

This site is protected by reCAPTCHA and the Google Privacy Policy and Terms of Service apply.

Do not fill in this field:

This site is protected by reCAPTCHA and the Google Privacy Policy and Terms of Service apply.

Do not fill in this field:

This site is protected by reCAPTCHA and the Google Privacy Policy and Terms of Service apply.

$

Do not fill in this field:

This site is protected by reCAPTCHA and the Google Privacy Policy and Terms of Service apply.