• $555,000List Price
  • PendingStatus
  • 80Number of Photos
  • 27.765319Latitude
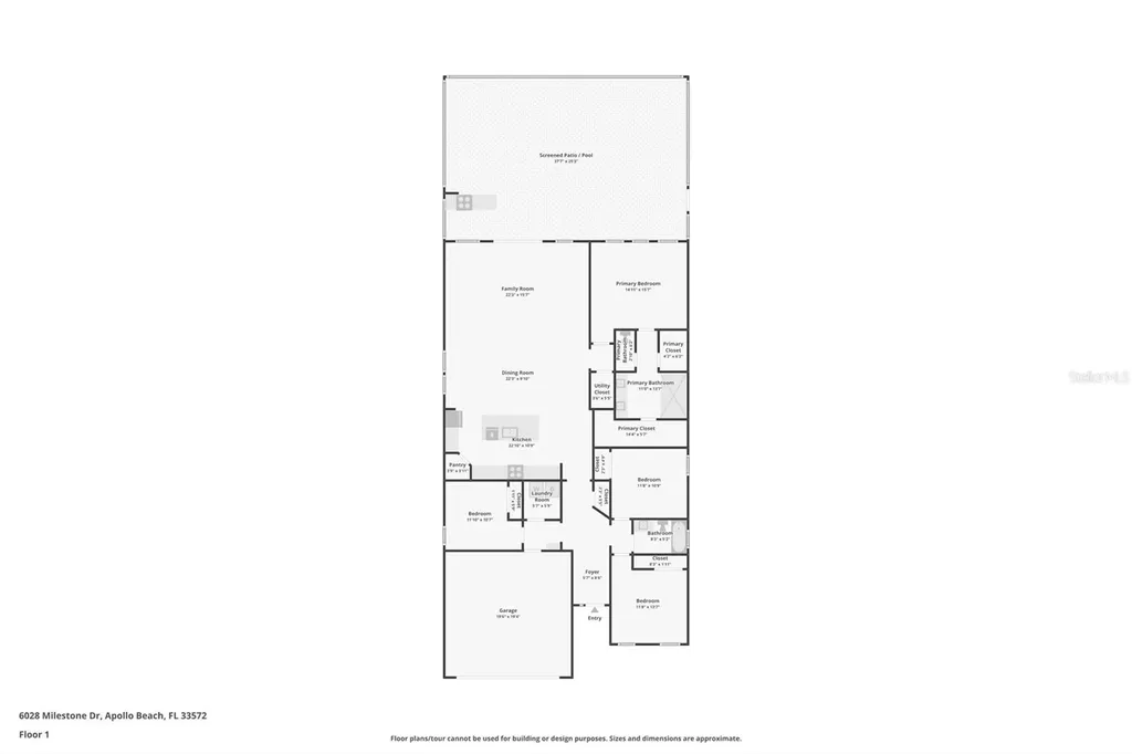
  • 6028 Milestone DriveAddress
  • Milestone DriveStreet
  • Apollo BeachTown
  • FLState
  • 33572Zip
  • HillsboroughCounty
  • ResidentialProperty Type
  • TB8337517MLS Number
  • 4Bedrooms
  • 2Full Bath
  • 2,315Square Feet
  • 2019Year Built
  • 0.15Acreage

Listing Tools

Under contract-accepting backup offers. Buyer's Financing Fell Through! Motivated Seller Welcomes all OFFERS!!! Ask about the Choice Home Warranty!! 6028 Milestone Drive, a truly exceptional 4-bedroom, 2-bathroom pool home spanning 2,315 sq ft, nestled in the highly sought-after Waterset community of Apollo Beach, Florida. Built in 2019, this residence offers a perfect blend of modern luxury, comfort, and remarkable energy efficiency thanks to its solar panel system, offering virtually no electric bill. Step inside and discover an expansive open-concept layout, designed for both effortless entertaining and quiet relaxation. The heart of the home is the stunning kitchen, a chef's dream featuring top-of-the-line stainless steel appliances, elegant granite countertops, a large center island, and ample solid wood cabinetry. This culinary haven seamlessly flows into the inviting family room, creating an ideal gathering space for all. Natural light floods every corner of this home, thanks to strategically placed large windows and sliding glass doors that create a bright and airy atmosphere throughout. The private primary suite is a luxurious retreat, boasting generous dimensions and a spa-like en-suite bathroom with dual vanities and a spacious walk-in shower. Four spacious bedrooms and a large den provide flexible living options to suit any lifestyle. But the true Florida lifestyle awaits just beyond your sliding glass doors! Step into your own backyard oasis, complete with a sparkling, screened-in pool and a large hot tub, all complemented by a covered lanai - the perfect setting for unwinding after a long day or hosting memorable gatherings. The fully fenced yard ensures added privacy, making it an ideal spot for outdoor living. Beyond the comforts of your private sanctuary, you'll gain access to the incredible resort-style amenities of the vibrant Waterset community. Enjoy endless opportunities for recreation and relaxation with a clubhouse, state-of-the-art fitness center, scenic walking trails, and multiple community pools. This prime Apollo Beach location offers unparalleled convenience, with local shopping, dining, and top-rated schools just moments away. As part of the vibrant Waterset community, you will enjoy resort-style amenities, including a clubhouse, fitness center, walking trails, and multiple pools. This home is in a prime location near local shopping, dining, and top-rated schools and offers the best Florida living. With its perfect blend of comfort, luxury, and convenience, this 2,500 sq ft pool home is ready for you to move in and start living the life of which you have always dreamed!

Location

Listings courtesy of StellarMLS as distributed by MLS GRID. Based on information submitted to the MLS GRID as of February 8, 2026 5:00 AM EST. All data is obtained from various sources and may not have been verified by broker or MLS GRID. Supplied Open House Information is subject to change without notice. All information should be independently reviewed and verified for accuracy. Properties may or may not be listed by the office/agent presenting the information. IDX information is provided exclusively for consumers’ personal noncommercial use and may not be used for any purpose other than to identify prospective properties consumers may be interested in purchasing. The data is deemed reliable but is not guaranteed by MLS GRID. The use of the MLS GRID Data may be subject to an end user license agreement.

Hi there! How can we help you?

Contact us using the form below or give us a call.

Send Us A Message:

By submitting this form I agree to receive marketing and customer service calls and text messages from Michael Saunders & Company. To opt out, you can reply 'stop' at any time or click the unsubscribe link in the emails. Consent is not a condition of purchase. Msg/data rates may apply. Msg frequency varies. Privacy Policy.

Do not fill in this field:

This site is protected by reCAPTCHA and the Google Privacy Policy and Terms of Service apply.

Hi there! How can we help you?

Contact us using the form below or give us a call.

Send Us A Message:

Do not fill in this field:

This site is protected by reCAPTCHA and the Google Privacy Policy and Terms of Service apply.

Hi there! How can we help you?

Contact us using the form below or give us a call.

Send Us A Message:

Do not fill in this field:

This site is protected by reCAPTCHA and the Google Privacy Policy and Terms of Service apply.

Do not fill in this field:

This site is protected by reCAPTCHA and the Google Privacy Policy and Terms of Service apply.

Do not fill in this field:

This site is protected by reCAPTCHA and the Google Privacy Policy and Terms of Service apply.

Do not fill in this field:

This site is protected by reCAPTCHA and the Google Privacy Policy and Terms of Service apply.

$

Do not fill in this field:

This site is protected by reCAPTCHA and the Google Privacy Policy and Terms of Service apply.